Our Sample Projects

See How Our Projects are Structured and Planned.

Conversion

Recent House Conversion to 12 Flats

Block of flats extension

Darius Chenki

Good job. Took time but planning done.

Extension

Super House Extensions

House Extension

Majon Cheema

All good. Thank you.

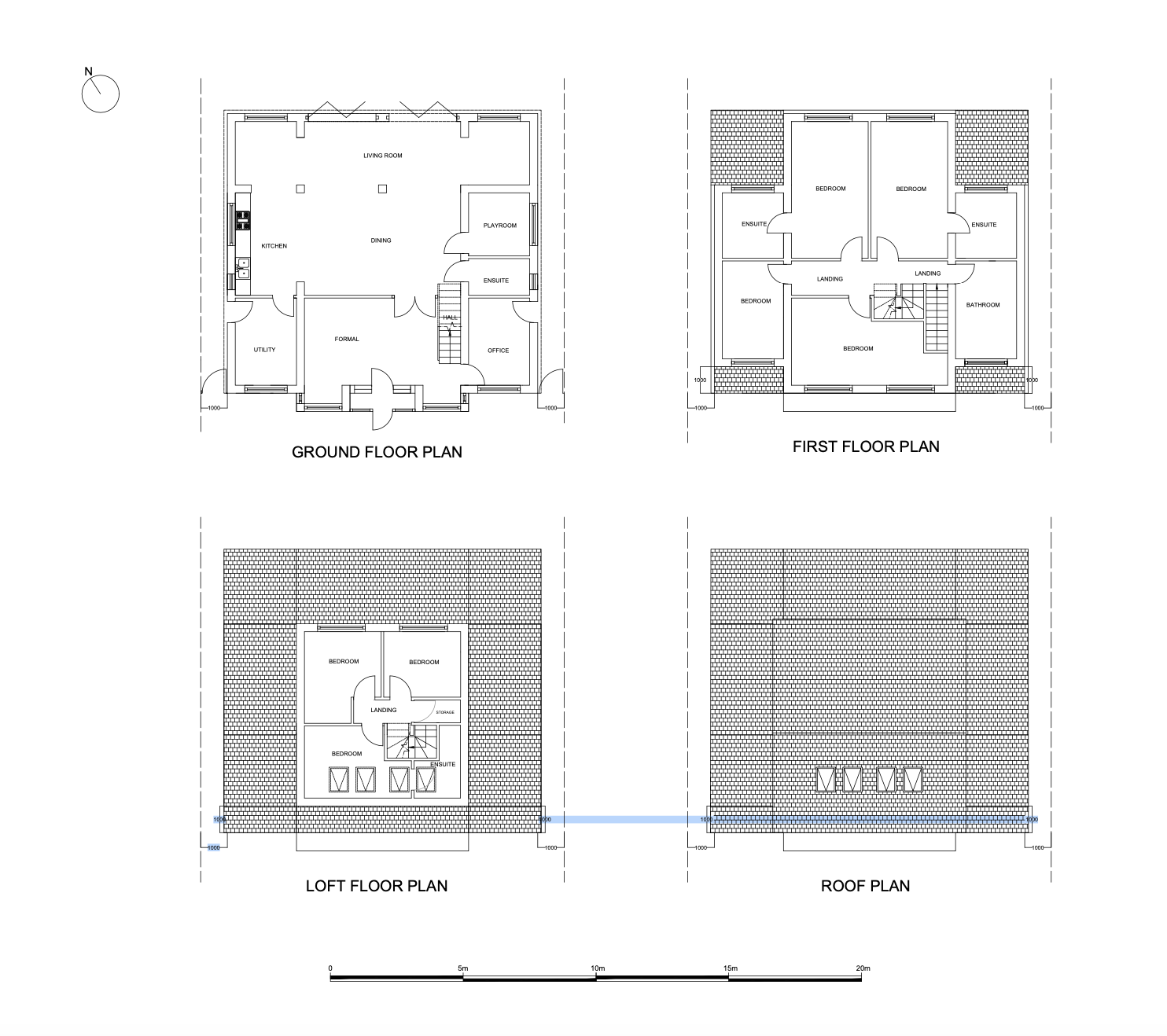
New Build

New Detached House

New Build

Gurj Singh

Got the planning we needed.

Loft

Loft Conversions

Loft on a cottage house

Maryam Kall

Happy with plans and planning approval within deadline.

Garage

Large garage application

Retrospective Garage

 

Rall Pillan

Happy with my planning approval. Thanks Alan Goody.

ALAN GOODY

We can assist with plans for the purposes of planning applications. We are well versed in dealing with feasibility studies and our members liase frequently with local councils and planning officers, to ensure the clients needs are best served.

Get in touch